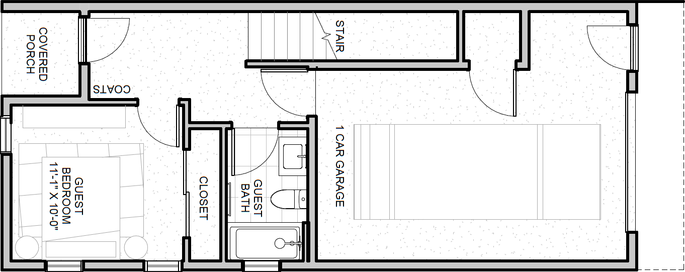
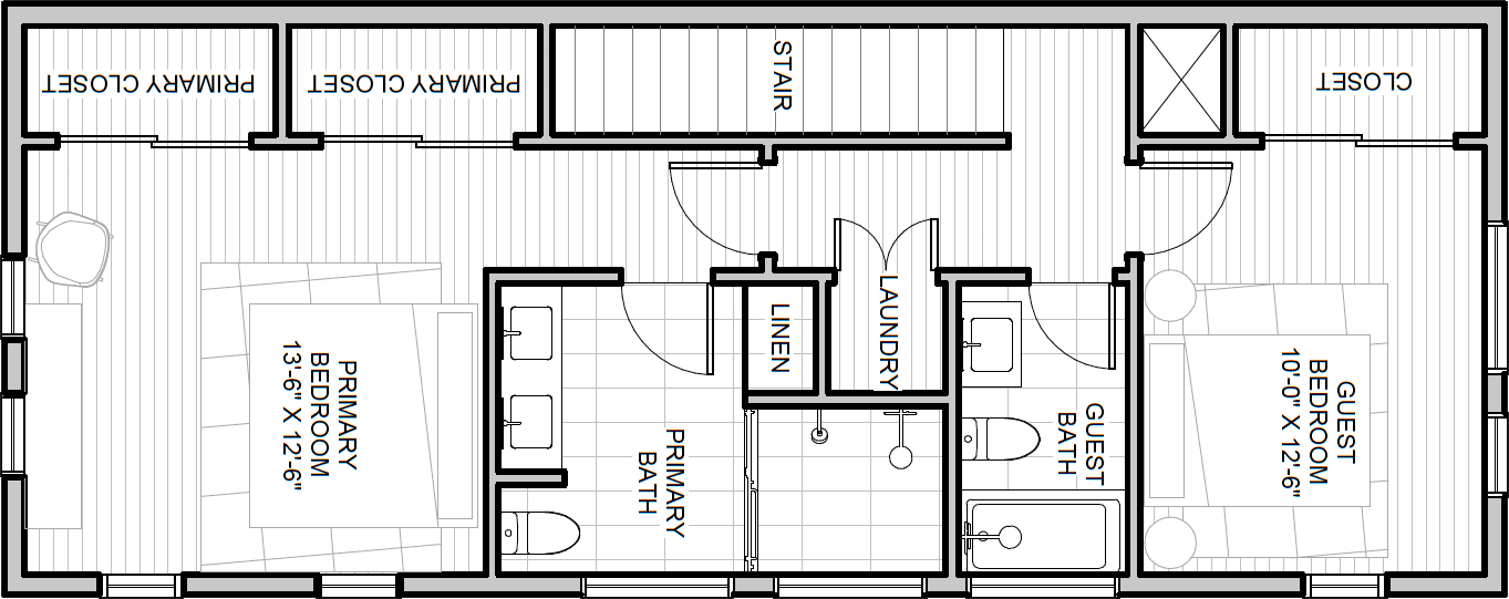
3528 Gonzales

2B

A quiet, interior-facing layout with a flexible footprint. This unit offers three full bedrooms, an open-concept kitchen/dining space, and layered light across every level.

3 Bedroom
3.5 Bathroom
1 Flex/Office Spaces
1-Car Garage
1860 Interior Living (Sq Ft)
2173 Total Area (Sq Ft)
Covered Porch, Private Yard

Finish Palette

Sage