A Limited Collection, Thoughtfully Designed.

Look Closer.

Tucked just off Springdale Road, between a local coffee shop and the low hum of something always happening, sits a quiet pause in the city.

Twelve townhomes. Three stories each. Clean lines, brick façades, and just enough edge to belong here, on this particular stretch of East Austin. These homes balance strong lines with warm materials, generous layouts with smart flow. Select plans include balconies, small yards, or rooftop glimpses of the city.

Living, Refined

Designed with purpose and poise, each residence balances clean architectural lines with warm, modern interiors, offering light-filled spaces, private outdoor moments, and intuitive layouts made for real life. Elevated yet understated.

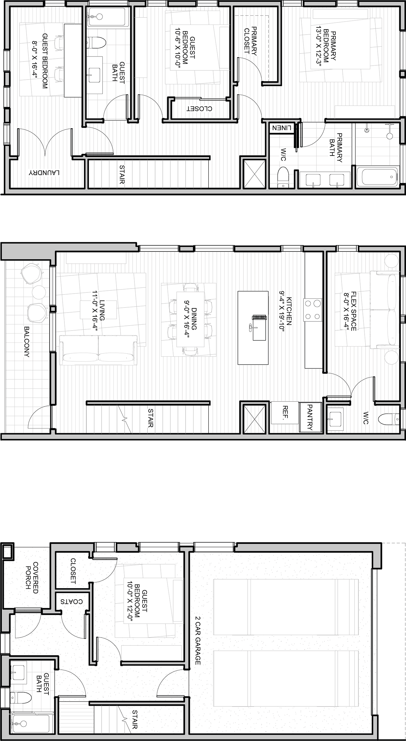
The Plan

Every square foot has been considered. From the flow of natural light to the separation of space, these three-level floor plans are designed to live beautifully, whether you’re hosting, working, or winding down. With thoughtful proportions and a seamless sense of movement, each plan reflects a modern way of living that feels both intuitive and inspired.

The Setting, Perfectly Placed

Surrounded by the quiet energy of East Austin, this enclave offers the best of both worlds: a serene residential feel just moments from the city’s most inspired dining, culture, and green spaces. With walkable charm and an effortlessly modern rhythm, it’s a neighborhood that feels both established and undiscovered.

Friends dining and drinking wine at table in East Austin Springdale Neighborhood – Mira Residences

Inquire Now

"*" indicates required fields

This field is for validation purposes and should be left unchanged.
Name*
Preferred Method of Communication*
Stay Informed?
By selecting “Stay Informed?”, you agree to be contacted by the Mira Team via call, email, and text for real estate services. To opt out, you can reply 'stop' at any time or reply 'help' for assistance. Message and data rates may apply. Message frequency may vary. Privacy Policy

Up To

$100K

Flex Cash

__

On a Select Residence*