3528 Gonzales

1B

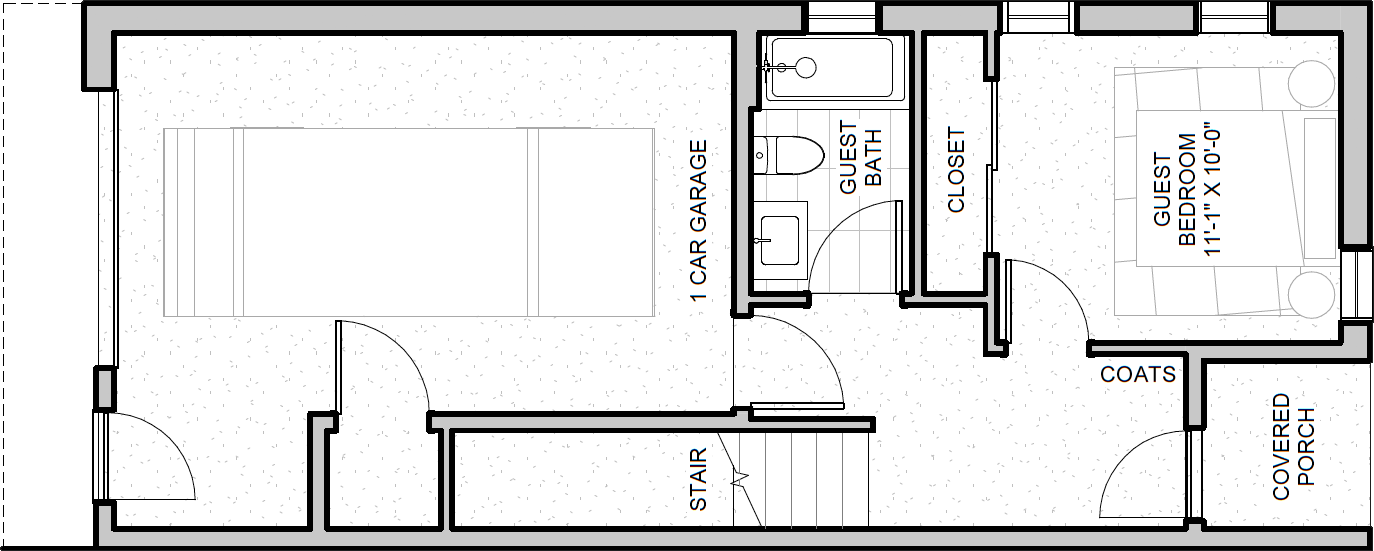
A thoughtful use of every square foot. Featuring three bedrooms, a flex space, and smart storage throughout, this plan blends modern proportions with daily practicality.

3 Bedroom
3.5 Bathroom
1 Flex / Office Space
1-Car Garage
1893 Interior Living (Sq Ft)
2215 Total Area (Sq Ft)
Covered Porch, Courtyard

Finish Palette

Twilight