3528 Gonzales

2A

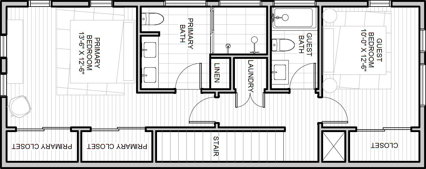
A plan that lives like a single-family home, with a full guest suite, seamless main floor living, and dual upper bedrooms that bring privacy without feeling closed off.

$965,000

3 Bedroom
3.5 Bathroom
1 Flex / Office Space
1-Car Garage
1860 Interior Living (Sq Ft)
2173 Total Area (Sq Ft)
Covered Porch, Courtyard

Finish Palette

Sage

Up To

$100K

Flex Cash

__

On a Select Residence*