3524 Gonzales

2B

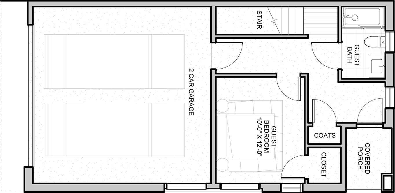
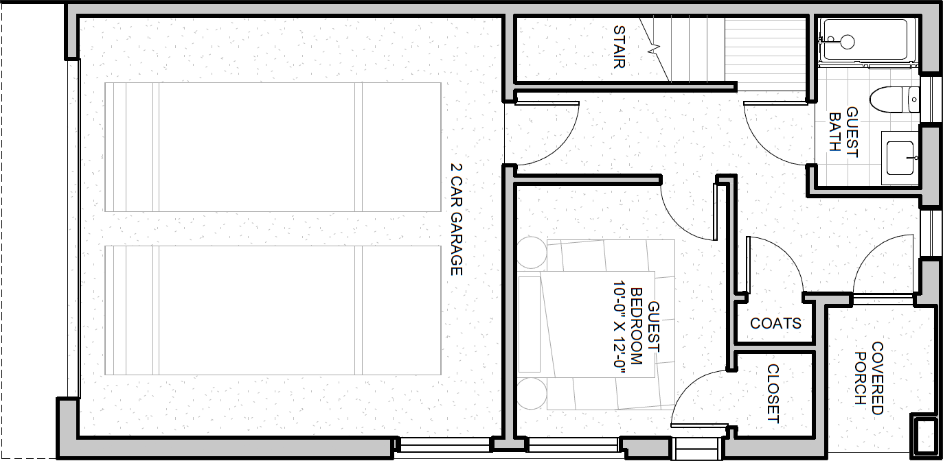
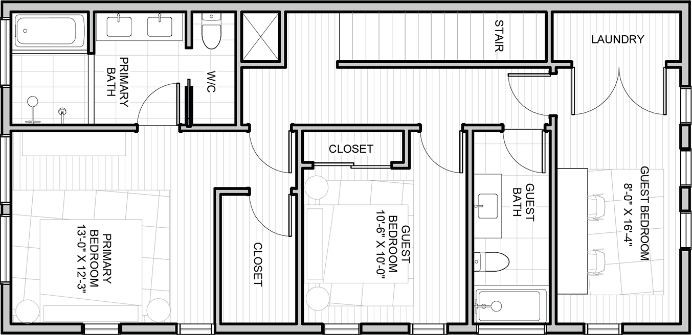
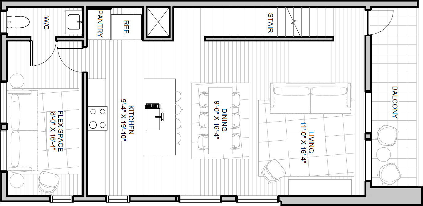
Crisp lines and clever space planning define this layout, highlighted by a dedicated office, guest quarters on both ends of the home, and a warm, light-filled main living floor.

4 Bedroom
3.5 Bathroom
1 Flex / Office Space
2-Car Garage
2147 Interior Living (Sq Ft)
2590 Total Area (Sq Ft)
Covered Porch, Balcony, Private Yard

Finish Palette

Twilight

Up To

$100K

Flex Cash

__

On a Select Residence*