3530 Gonzales

A

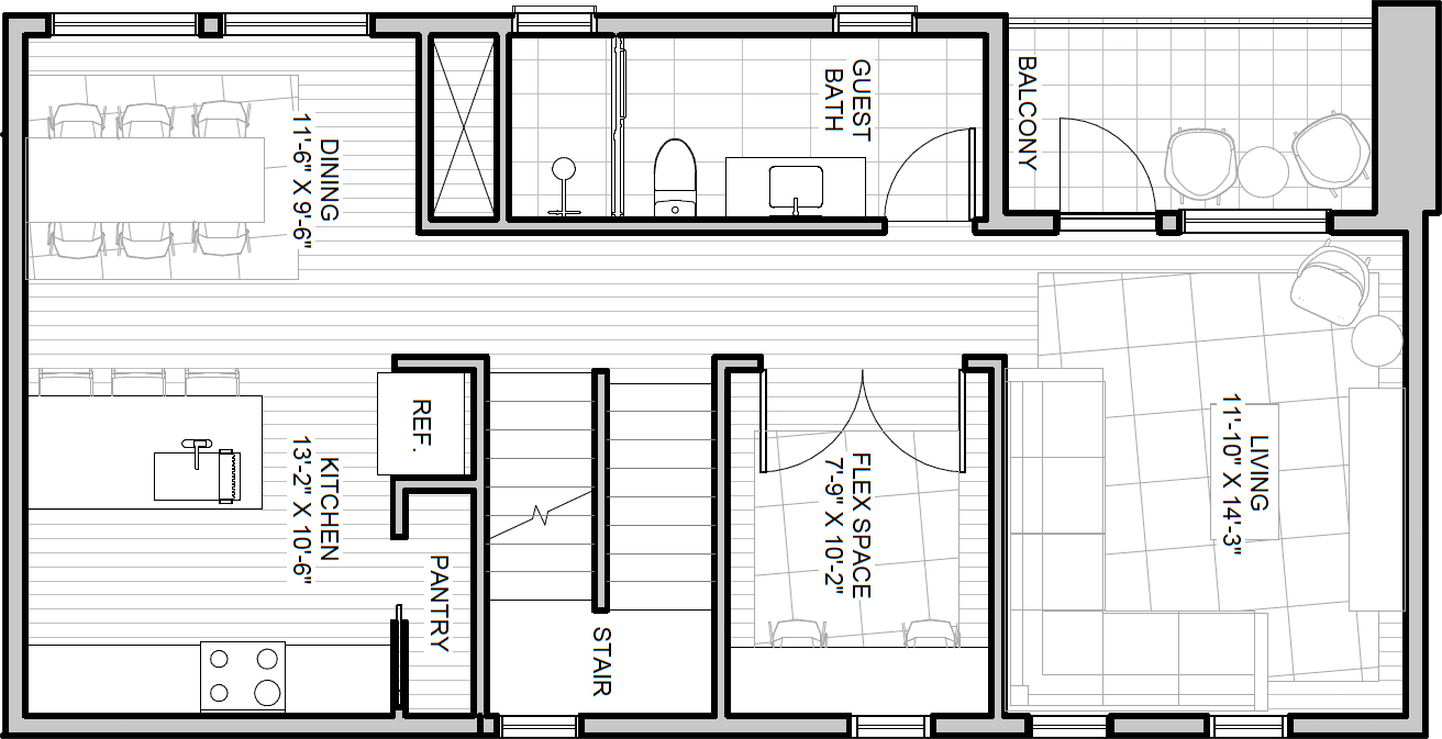
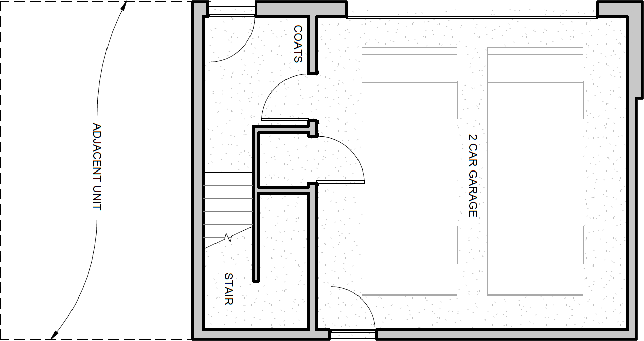
Generous and refined, with a 2-car garage and a top-floor office that adds dimension to daily life. Perfect for those who want spatial clarity, a true primary suite, and plenty of room to host or hibernate.

3 Bedroom
3 Bathroom
1 Flex / Office Space
2-Car Garage
1854 Interior Living (Sq Ft)
2307 Total Area (Sq Ft)
Balcony, Courtyard

Finish Palette

Sage