3524 Gonzales

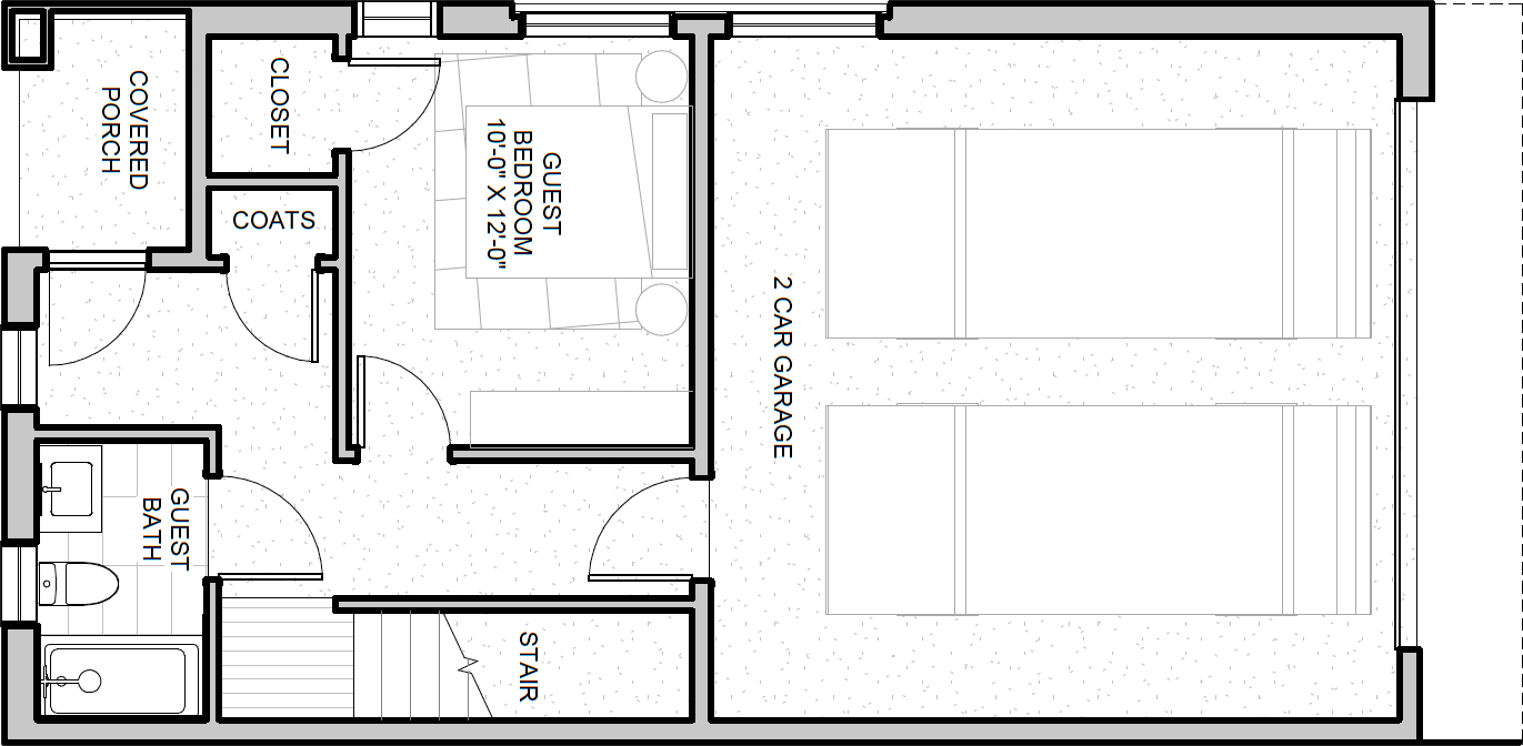
1A

Spacious and sunlit with a flex space that flows naturally into a generous living level. Ideal for those who crave room to move—with private balconies, a full office, and an intuitive separation of public and private space.

3 Bedroom
3.5 Bathroom
2 Flex/Office Spaces
2-Car Garage
2147 Interior Living (Sq Ft)
2590 Total Area (Sq Ft)
Covered Porch, Balcony, Private Yard

Finish Palette

Sage